
Marin Residence
Firm
Marie Fisher Interior Design
Project Type
Renovation
Location
Marin, CA
Role
FF&E Selections (Hardware / Fixtures / Lighting)
Kitchen Space Planning
Custom Millwork Design
Construction Documents
Year Completed
2015
02 / Design Process
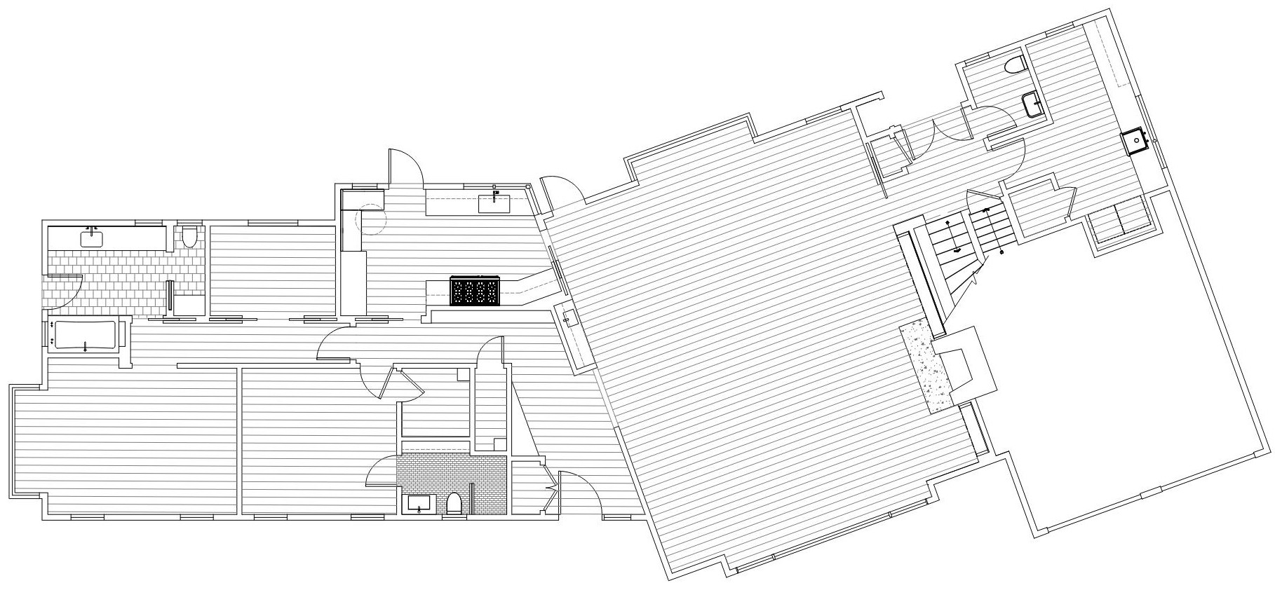
Overall Floor Plan

Design Development | Custom Millwork
Living Room

Kitchen Floor Plan

Kitchen Photos


Kitchen Elevation Studies






